欢迎访问好房东! 网站首页
小面积 低价格厂房
编号:51238
区域:廊坊- 固安
类别:厂房出售
占地面积:22600平米
价格:100.0元/㎡/天
建筑面积:520000平米
车间面积:300平米
办公面积:300平米
柱网跨度:8米
层高:6.8米
现配电容量:60KVA
分割面积:
地址:

    规划三路

详情概况

【固安园区厂房出售】

因大联科·京津冀企业总部科创城

【项目介绍】占地226亩,总建面52万平米

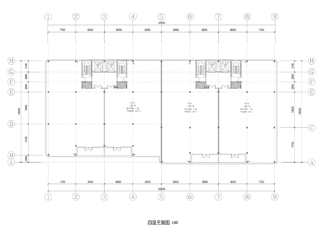
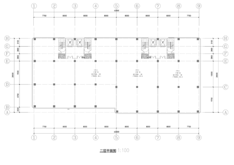
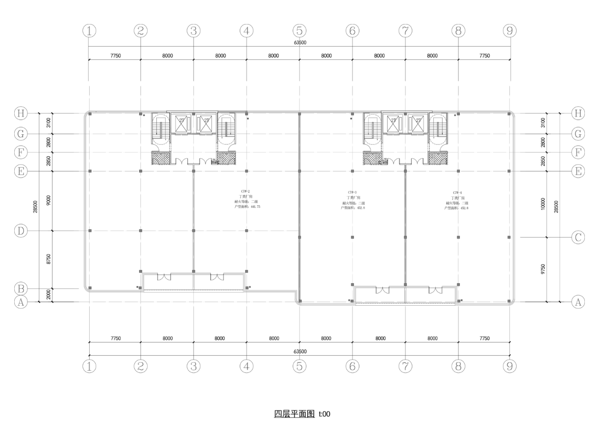
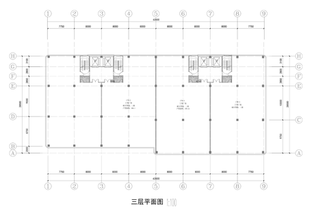
【产品结构】4-5层独栋/分层厂房,7-11高层/分层厂房

【产品面积】分层面积300-2000㎡,整栋面积1200-6000㎡

【产品层高】首层6.8/7.2米,楼上4.2-6.8米

【楼板承重】首层2吨/㎡, 标准层0.4-1吨/㎡,顶层0.3-0.4吨/㎡

【配套交通】大广高速、京雄高速、京德高速、首都环线 

【通勤距离】距离固安站:6公里;距离固安东站:14公里;距离北京大兴国际机场:16公里;距离北京天宫院地铁站20公里,距离六环线25公里

【产权性质】50年国有工业大产权

【消防等级】丁类

【项目位置】廊坊市固安县高新区新显路与371省道交口南100米


【京津冀企业总部科创城项目简介】

京津冀企业总部科创城,雄踞于北京、天津、雄安新区“黄金三角”的几何中心——固安,坐享得天独厚的战略区位。项目总占地226亩,建筑面积达52万平米,专为瞄准国家战略性新兴产业赛道的中小企业与科技创新型企业打造,是助力企业锚定时代窗口、执掌产业未来的核心载体。

一、 独一无二的战略区位与产业腹地

固安距北京天安门、雄安新区仅50公里,距天津80公里,是同时承接北京非首都功能疏解、天津先进制造配套与雄安未来产业协同的黄金节点。15分钟直达北京大兴国际机场,立体化“空铁公”交通网络,让企业高效链接全球。

二、 全生命周期空间解决方案

项目占地226亩、建面52万㎡,规划4-5层独栋、7-11层工业上楼、汽车上楼三大主力产品,5.5-9米层高可做隔层实现“买一送一”规划独栋厂房、工业上楼等多类产品,提供300-2000㎡灵活空间。创新推出“企业成长级空间配置”:

•初创三件套(生产+仓储+办公):300-500㎡,低门槛启动。

•瞪羚五件套(+研发+展示):800-1500㎡,满足快速扩张。

•小巨人七件套(+接待+住宿):2000㎡以上独栋,树立企业形象。

三、 三维赋能体系,超越传统园区

1.全链服务赋能:配备“企业服务专员”,提供政策申报、技术对接、政务代办等一站式服务。

2.产业资源赋能:背靠中南高科全国80城产业网络,链接超1.2万家企业,助力业务跨区域协同。

3.标杆配套赋能:构建“生产、生活、生态”三生融合的尔湾式高品质环境,但成本仅为北京的1/3,实现“尔湾品质,固安成本”。


实景照片